Fives Court: Difference between revisions
m (→See Also: Adding category CCF) |
(1888 plan) |
||
| Line 2: | Line 2: | ||
==First Fives Court== | ==First Fives Court== | ||
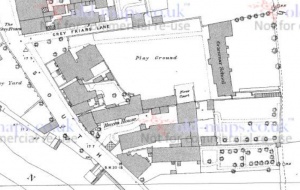
[[File:1888OSMap.jpg|left|thumb|1888 plan of BGS showing the location of the first Fives Court]] | |||
The original fives court was built in the late 19th century - believed to be around 1871. It was demolished in 1904, and the [[Science Blocks#First Science Block|first science block]] was erected in its place. In the same year, a new (second) fives court was constructed. | The original fives court was built in the late 19th century - believed to be around 1871. It was demolished in 1904, and the [[Science Blocks#First Science Block|first science block]] was erected in its place. In the same year, a new (second) fives court was constructed. | ||
Revision as of 11:51, 13 January 2021
There have been two fives courts built at Boston Grammar School, both of which were situated in the Mart Yard.
First Fives Court
The original fives court was built in the late 19th century - believed to be around 1871. It was demolished in 1904, and the first science block was erected in its place. In the same year, a new (second) fives court was constructed.
Second Fives Court
The second fives court was built in 1904, also situated in the Mart Yard. It was an unusual looking building at least until you realised its original purpose, for playing Fives.
The building was converted into a CCF armoury in 1956, when the War Office took it over on lease at a peppercorn rental, and agreed to fund necessary alterations and to pay for periodic maintenance. It was later used by the school caretaker as a store.
The second fives court was demolished around 2000, to make way for the third science block which is now on the site.
